Τηλ. Επικοινωνίας: +30 210 77 10 150
Πώληση

ID Ref # :LBA10606

Αττική, Ελληνικό, Αθήνα Νότια Tk : 16777

€450,000

  871 Views
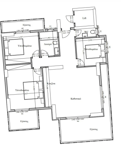
3 Υπνοδωμάτια
1 Μπάνια
91 m²
  • Υπνοδωμάτια: 3 Υπνοδωμάτια
  • Μπάνια: 1 Μπάνια
  • Τετραγωνικά μέτρα:91 m²
  • Όροφοι:1
  • Οροφος1
  • Τύπος Ακινήτου:Κατοικίες , Διαμέρισμα
  • Ετος κατασκευής :2025

Η θέση του οικοπέδου είναι στα νότια προάστια της Αττικής, στο Ελληνικό. Το κτίριο τοποθετείται πλησίον στο πάρκο "Ελληνικό Experience". 
Στο μέλλον, αναμένεται ότι θα βρίσκεται στην είσοδο της αερογέφυρας και θα συνδέεται με έναν πεζόδρομο που θα οδηγεί προς το πάρκο, το εμπορικό κέντρο, καθώς και τη θάλασσα. Το κτίριο έχει διαμορφωθεί σε δύο τμήματα, με το κλιμακοστάσιο να αποτελεί τον κεντρικό άξονα συμμετρίας προσφέροντας αυτονομία για κάθε διαμέρισμα. Με επιφάνειες 91τ.μ. και 140τ.μ., ανάλογα με τις ανάγκες σας, κάθε διαμέρισμα προσφέρει άνεση και λειτουργικότητα. Τα δύο ή τρία υπνοδωμάτια, η κουζίνα, το σαλόνι, το λουτρό και το WC παρέχουν τον ιδανικό χώρο για την οικογένειά σας. Τα μπαλκόνια με θέα στη θάλασσα και την πανοραμική Ριβιέρα προσθέτουν μια επιπλέον διάσταση στην καθημερινή σας ζωή, προσφέροντας χώρο για χαλάρωση. Επιπλέον, η θέση στάθμευσης στην πυλωτή και η αποθήκη στο υπόγειο διευκολύνουν την καθημερινότητά σας, προσφέροντας άνεση και ασφάλεια για τα οχήματά σας και τα προσωπικά αντικείμενά σας. Πρόκειται να τοποθετηθούν φωτοβολταϊκά πάνελ με χρήση Net metering προκειμένου να εξασφαλίζει αυτόνομη παραγωγή ενέργειας. Παρέχεται ενδοδαπέδια θέρμανση και αντλία θερμότητας ενώ το κτίριο κατατάσσεται στην κατηγορία A+ κατά τα πρότυπα ποιότητας και ενεργειακής κλάσης κατοχυρώνοντας έτσι την υψηλή απόδοση και την πλήρη συμμόρφωση προς τις προδιαγραφές. Το διαμέρισμα  ανταποκρίνεται στις ανάγκες και τις επιθυμίες των κατοίκων του, προωθώντας ταυτόχρονα την ενεργειακή αποδοτικότητα, την ποιότητα ζωής και την βιωσιμότητα. 

 

  • Κουφώματα Αλουμινίου
  • Αυτόνομη Θέρμανση
  • Κλιματισμός
  • Ενδοδαπέδια θέρμανση
  • Ηλιακός Θερμοσίφωνας
  • Διπλά τζάμια
  • Αποθήκη
  • Ανελκυστήρας
  • Πάρκινγκ
  • Πόρτα Ασφαλείας
  • Συναγερμός
  • Τζάκι
  • Θέα
  • Βεράντες
  • WC
  • Κοντά σε ΜΜΜ

Αττική, Ελληνικό, Αθήνα Νότια

Σχολείο

0,1

Μετρό

0,5

Γράψτε μια κριτική

Παρακαλώ Συνδεθείτε να γράψετε κριτική!

5

Μέση βαθμολογία

Θέλετε να Γίνετε Μεσίτης Ακινήτων;

Θα σας βοηθήσουμε να αναπτύξετε την καριέρα και την εμπειρία σας.
Μάθετε Πως!